Ismertető
TÖBBGENERÁCIÓS OTTHON VAGY EGY KIVÁLÓ BEFEKTETÉS
A XVIII. kerület egyik kedvelt részén, a Bókaytelepen kínálok megvásárlásra egy 456 m2 alapterületű (nettó 386 m²), önálló családi házat, amely tágas tereivel és sokoldalú lehetőségeivel új tulajdonosa igényeihez alakítható.
Az ingatlan jelenleg három teljes értékű, külön bejáratú lakásból áll, így ideális nagycsaládnak, több generációnak, de befektetésnek vagy bérbeadásra is kiváló választás.
Elsősorban egyben értékesítjük, azonban külön lakások iránt érdeklődők jelentkezését is szívesen fogadjuk.
Miért különleges ez az ingatlan?
✔ Teher- és permentes, hitelezhető
✔ Ablakai mind a négy égtájra nyílnak, egész nap világos terek
✔ 2000-ben épült, folyamatosan karbantartott
✔ a 106 m² alapterületű pince, akár garázsnak vagy műhelynek is kiváló
✔ Több autó számára utcai parkolási lehetőség
✔ Lidl, Spar, DM, üzletek pár perc sétára
✔ M3-as metró 10 percen belül elérhető
Folyamatban lévő felújítások:
A jelenlegi korszerűsítések 2026 első negyedévében fejeződnek be:
- nyílászárók cseréje
- külső szigetelés
- fürdőszobai burkolatok megújítása
Műszaki tartalom – gondos kivitelezés:
- 15 cm-es külső hőszigetelés
- műanyag nyílászárók redőnnyel és szúnyoghálóval
- réz villanyvezetékek
- cserélt vízvezetékek
- zsindelytető
- parkettás szobák, járólapos közlekedők és vizes helyiségek
- kondenzációs kazán + napkollektor
- térkövezett udvar és burkolatok
Konyhabútor mindhárom lakásban az új tulajdonos igényei szerint alakítható ki, így teljesen személyre szabható!
1.Lakások bemutatása
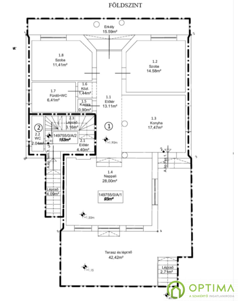
- Földszinti lakás
- tágas közlekedő
- 2 különnyíló szoba
- zuhanyzós fürdő + külön WC
- konyha + 28 m²-es nappali
- 42 m² alapterületű teraszkapcsolat, nyugati fekvéssel
- fűtés: 3 db klíma, melegvíz: villanybojler
2. Emeleti + tetőtéri lakás
Emelet:
- 27 m² amerikai konyhás nappali
- 3 különnyíló szoba
- zuhanyzós fürdő WC-vel + külön WC
- 2 erkély
Tetőtér:
- 2 nagyobb + 1 kisebb helyiség
- konyha kialakítható
- zuhanyzós fürdő WC-vel
3. Kisház – különálló lakás a telek végében
- 44 m² alapterület
- 1 szoba + amerikai konyhás nappali
- előtér
- zuhanyzós fürdő WC-vel
Ha családi otthont, többgenerációs megoldást vagy stabil befektetést keres, ez az ingatlan ritka lehetőség!
Várom hívását az ingatlan megtekintése kapcsán a hét BÁRMELY napján, akár az ESTI órákban is!
Részletek
-
Építés éve:
2000 -
Szobák száma:
9 -
Állapot:
használt – felújított -
Fűtés:
gáz + alternatív -
Épület típusa:
családiház -
Tájolás:
DNY -
Szintek száma:
3 -
Telekméret:
745 m2 -
Övezet:
lakó -
Fényviszonyok:
világos -
Belmagasság:
2-3m között m
Extrák
Alaprajz
